新築戸建
広島市安佐北区亀崎2丁目No.1〜No.2
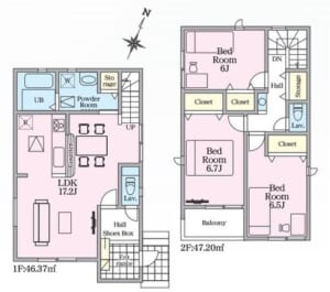
コチラの物件は、新築の戸建て物件で設備も充実しています。建設住宅性能評価付なので地震保険などが優遇されやすいです。リビングダイニングが18帖以上あり、オープンな雰囲気でゆったりとくつろげます。前面道路6m以上は確保しているので車の出し入れもラクラクです。
販売価格: 2680万
-
物件種目
新築戸建
-
所在地
広島市安佐北区亀崎2丁目10-
-
価格
2680万
-
販売戸数
2
-
総戸数
2
-
建物面積
89.42㎡〜93.57㎡
-
土地面積
115.15㎡〜128.53㎡
-
建ぺい率容積率
建蔽率50%容積率100%
-
完成時期(築年月)
2025年6月
-
引渡可能時期
相談
-
土地の権利形態
所有権
-
用途地域
第一種低層住居専用地域
-
地目
宅地
掲載日: 2025年11月11日(火)
情報更新日: 2025年12月03日(水) 13:02

